FLORENT GIRAUD Négociateur
Télécharger la fiche

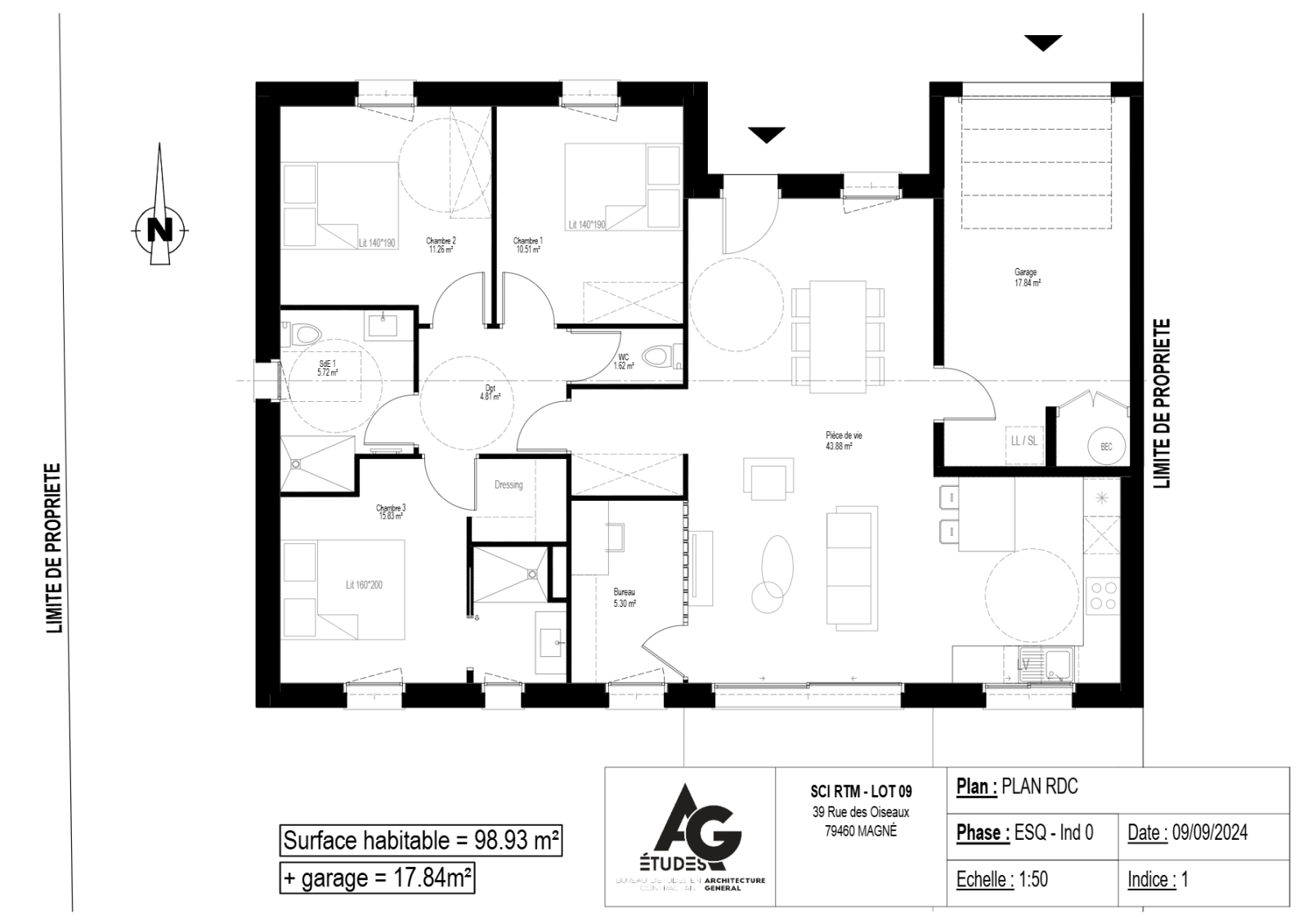
Maison 5 pièce(s) 3 chambre(s) 98.93 m²

Magné (79460)
1 100 € HC* * Hors charges Référence 936

A propos de ce bien

MAGNE LOCATION PLAIN PIED NEUF 98.93 M² 3 CH BUREAU GARAGE Proche du Super U.

Cette maison NEUVE sera livré début avril 2026, ce qui entraine un diagnostic à la fin de livraison..

Ce bien comprend : pièce de vie avec sa cuisine ouverte, espace bureau, espace dégagement avec rangement; 2 chambres avec rangement, et suite parentale avec salle d'eau privative et dressing.

Garage, préau d'accueil, terrasse, petit jardin et stationnement.

Loyer mensuel 1100 euros plus 35 euros de charge mensuelle (om + entretien pac et vmc tous les 2 ans).

DÉPOT DE GARANTIE : 1 100 €.

Dossier complet exigé par mail avant visite adressé à l'adresse suivante envie-dimmo@orange.fr : CNI, 3 derniers bulletins de salaire, dernier avis d'imposition, copie contrat de travail et 3 dernières quittances de loyer si location actuellement.

Le loyer et charges seront payable par virement uniquement

.Merci de contacter Monsieur Florent GIRAUD pour plus d'information

Les honoraires d'agence locataire sont de 860 € TTC dont 150 € d'état des lieux entrée ET sortie.

LOCATION VIDE DUREE 3 ANS RENOUVELABLE

Nous disposons de deux logements quasi identiques livré en même temps dépêchez vous.

ENVIE D'IMMO Votre Agence Immobilière

31 Rue de la Reine des Près 79460 - MAGNÉ

05.16.81.48.18 / envie-dimmo@orange.fr

Caractéristiques de ce bien

  • Surface 98,93 m²
  • carrez 98,93 m²
  • séjour 43,88 m²
  • 3 chambre(s)
  • 1 salle(s) d'eau
  • construit en 2025
  • cuisine américaine (semi-équipée)
  • Chauffage individuel : au sol (pompe à chaleur)
  • 1 garage(s)
  • 3 parking(s)
  • terrasse

Diagnostics énergétiques

Consommation énergétique
A B C D E F G
Emission de gaz à effet de serre
A B C D E F G
DPE vierge

Informations financières

Loyer HC* / mois 1 100 €
Honoraires TTC charge locataire 860 €
Dont état des lieux 150 €
Complément de loyer 35 €
Dépôt de garantie TTC 1 100 €
Charges locatives (forfaitaires mensuelles) 35 €

Autour du bien

  • Commerces et santé
  • Loisirs
  • Ecoles
  • Transports
  • Pratique